究極の平屋を目指し技術とアイデアを駆使したCONCEPTモデルです。
家族との時間を大切に、振る舞いやすく、そして自分らしく自由であることを望む方に最適な空間をお届けします。
9,800,000円〜(税込)
※建築地により仕様が変更する場合があります。お気軽にご相談ください。
kotiの3つのこだわり
視線を遮る大きな壁の安心感
正面に配置した大きな壁が、外部からの視線を完全にシャットアウトします。周囲の環境に左右されず、プライベートな時間を守り抜く設計です。一方で、内部は玄関から庭までが一直線に繋がり、外観のクローズドな印象からは想像できないほどの開放感と、ゲストを温かく迎えるおもてなしの空間が広がります。
愛用品を飾るショップ風収納
「持たない暮らし」を前提に、収納を必要最小限に絞り込みました。隠すのではなく、厳選したこだわりのアイテムをあえて「見せる」ことで、住まい全体をセレクトショップのようなディスプレイ空間に仕立てます。余計なノイズがないゼロLDKだからこそ、一つひとつの家具や雑貨の個性が際立つ暮らしが叶います。
変化し続ける未完成の住まい
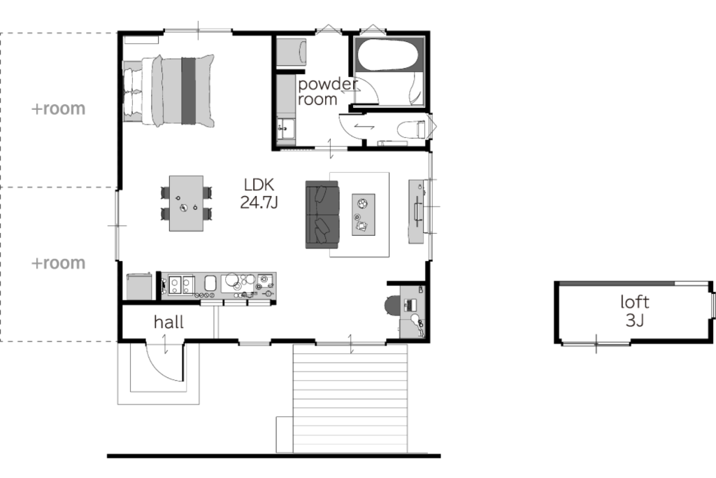
ライフスタイルの変化に合わせ、DIYで間仕切りや部屋を自由にプラスしていけるフレキシブルさが最大の魅力です。ワンルーム構成の室内は、リビング下の書斎スペースやロフトなど、使い勝手の良い居場所が点在. 住みながら手を加え、時間をかけて自分たちにとっての「究極の住まい」へと育てていく楽しみがあります。
家族がつながる間取り
玄関とキッチンの仕切りは室内窓を設置することで、視界と明るさを繋げることを実現。
ワンルームで必要最低限の間仕切りのみで構成しています。
またウッドデッキをつければその空間から、お庭も室内感覚で使える仕上げになっています。
日々の暮らしの風景
選べる4つのスタイル
DIYで棚を付けたり、壁の色を変えたり。
住みながら家族と一緒に成長していく、そんな「未完成の美しさ」を大切にしています。
※スタイルを選択することで、以下の内容が切り替わります。























